栢悦中心写字楼效果图 栢悦中心写字楼效果图 栢悦中心写字楼效果图 栢悦中心写字楼效果图
23载安徽置地,品质保障

安徽置地,成立于1997年。国家房地产开发一级资质,并两度荣膺中国建筑工程荣誉“鲁班奖”。五大“专业制造”理念,23座写字楼筑作经验,众多世界500强及优质企业品质之选。

抢驻东湖新城,绘筑品质保障

栢悦中心,抢驻临平东湖新城,一脉临平重资产辐射地带,随着余杭新市民中心(规划)、体育中心(规划)、临平北高铁站(规划)、未来制造城(规划)等政府规划逐步落地,商旅资源配套日渐丰富,区位优势渐显,赋能企业快速发展;同时,作为地处长三角经济圈一体化地带,被达沃斯高峰论坛评为“最具投资价值区”。目前已吸引日立、奥的斯、三菱等10余家世界500强企业名企入驻,绘制东湖新城产业版图。

TOD地铁上盖综合体,享丰沛资源

栢悦中心,地铁9号线(在建)东湖站上盖,打破区域限制,拉近主副城时空距离;三路一环、城铁、高铁多维立体交通网,助推区域商务经济腾飞。未来企业入驻,无论全城招聘、员工通勤,还是商务出行,都十分便利。

TOD+五星级酒店/TOD+立体商业岛,构建商务搭档

约168米写字楼,搭配以五星级酒店、地铁商业等构建商务搭档,

以TOD+多元业态,助力一站式、

国际化高端商务。

约2万方地铁上盖商业,一站式生活服务

TOD+约2万方立体商业,开放盒子式布局、环岛化商业主动线,为商务精英打造全天候、全业态、一站式生活消费中心。

共享5星级酒店,企业专属会客厅

TOD+五星级酒店,配置建面约700㎡、层高约8.8米国宾级宴会厅;挑高约5.2米(净高约4.5米)恒温泳池、健身会所等,为企业提供会议、宴请、休闲等高端服务。

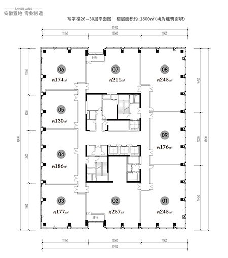
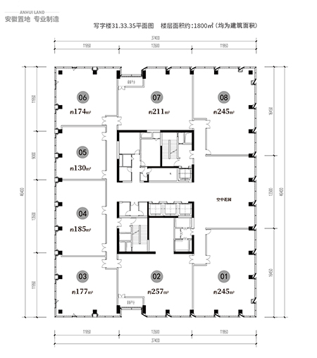
写字楼平面图
26-30层平面图 31、33、35层平面图

八大精工标准配置,满足高品质商务需求

栢悦中心,力求以集团总部的国际化标准定位、8大TOP级标准,

为企业、投资人士量身定制稳定、

国际化高端商务。

大厅实景图
时尚 | 中空Low-E玻璃
个性 | 工形灵活结构
创新 | 近10米精装挑高大堂
尊崇 | 精装公共空间
门禁实景图
豪气 | 约3.9米层高
闲逸 | 空中花园
节能 | 变冷媒流量空气调节系统
速度 | 五部品牌电梯
强强联合,信联物业、仲量联行尊贵服务

信联物业,国家一级资质物业服务企业,为安徽省内少有的荣获大厦、住宅“双国优”物业企业。集30余家世界500强及四千家国内知名企业的服务经验,24小时无忧尊崇服务。安徽置地凭借多年写字楼开发及运营经验,凭借甄选客户销售模式、专业租赁服务、专业服务平台等,保证项目的入驻率和持续运营;更引入世界知名的五大房地产咨询机构之一——仲量联行担纲物业顾问,为企业提供优越的商务礼遇。

本项目推广案名为【栢悦中心】,备案名【杭栢城】,预售证号:余售许字(2019)第1187号。 本宣传资料仅为要约邀请,相关内容不排除因政府相关规划、规定及开发商未能控制的原因而发生变化。本公司保留对宣传资料修改的权利。 所有文字、数据、图片等为相关设计效果的表达和示意,旨在提供相关信息,不意味着本公司对此做出了承诺, 买卖双方的权利义务以双方签订的《商品房买卖合同》及附件为准。开发商:杭州汇高置地有限公司