UDC·时代大厦位于钱江新城CBD,由两幢34层(地下2层)全玻璃幕墙双塔式H型建筑组成,其建筑规划、室内设计、景观设计皆由世界五大建筑设计事务所之一——德国gmp建筑师事务所全权担纲。项目占地面积15506平方米,总建筑面积122781平方米,1-4层为裙房商业,5-32层为办公用房,车位总数近500个。
目前UDC·时代大厦已于2010年年底全面交付,A幢采用整层出售的方式,已全部售罄。B幢写字楼和裙房部分进行招租。

钱江新城位于杭州市城区的东南部,钱塘江北岸,总用地面积18.6平方公里,分二期滚动实施。一期规划范围为东临钱塘江、南至复兴大桥、西至秋涛路、北至钱江二桥和艮山西路,总面积15.8平方公里;二期规划范围为东至和睦港、北至规划中的钱江路、西至钱江二桥、南至钱塘江,总面积2.86平方公里。钱江新城定位为长三角南翼区域中心城市的中央商务区,是杭州政治、经济、文化新中心,是杭州未来集行政办公、商务贸易、金融会展、商业功能于一体的商务区。
新城内核是以市民中心为中心,向钱塘江边的城市阳台形成中轴线,两侧建有杭州大剧院、国际会议中心、波浪文化中心等标志性建筑,以及世纪花园、森林公园、中央公园等大型休闲公园。

UDC·时代大厦踞于杭州大剧院东侧,周边各项优质市政配套、商务配套及商业配套环绕,交通便捷。
宽阔的钱塘江在项目东南面铺展浩瀚东去的身姿;“日月同辉”都市奇景在项目西南永久矗立;森林公园、世纪花园、中央公园等都市自然景观布局周边,为商务生活带来美的享受和优越感觉。
CBD内核的城市阳台、杭州大剧院、国际会议中心、波浪文化中心、市民中心已于2009年对外开放。杭州七星级酒店Jumeriah酒店、迪凯希尔顿酒店、UDC·全景天地万豪酒店等都已入住或者即将进驻。华润万象城购物中心也已开业运营。到2010年上半年,已引进金融机构10余家,包括建行浙江省分行、交通银行省分行、农业银行省分行等。
2011年年初,杭州市江干区政府下发了“以华联UDC·时代大厦B幢为基础打造总部经济大厦”的意见通知,明确了UDC·时代大厦B幢物业按照“政府引导、企业主体、市场化运作”的模式,还特别成立建设领导小组,给予特别优厚的扶持政策,以实际行动坚定地支持UDC·时代大厦B幢未来业主在钱江新城的立足和发展。
UDC·时代大厦享有便捷的交通,此外,UDC·时代大厦更是通过地下通道与新城地铁站直接相连,保证了进驻企业与外界高密度的商务联系的便捷性。

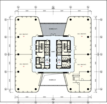
奇数层平面图
偶数层平面图

占地面积:15506㎡
建筑总高度:138m
楼层:商业裙房1-4F
办公楼层建筑面积:1465㎡
停车位:近500个
总建筑面积:122781㎡
避难层:18F
办公用房5-32F
停车楼层:2层(地下1-2层)
立面以箱型窗为格局,采用全落地中空安全LOW—E中空夹胶三层玻璃,创导出水晶般的幕墙效果。
以大块落地玻璃为基本格局,在落地玻璃中间镶嵌箱型单元窗,窗户开启设计有平开和内倒两种方式,通过窗户和不同开窗方式的设计,使室内与自然连通。
挑空大堂位于两幢楼中庭位置。15米挑高,设置有服务前台、茶水间、银行等全方位配套设施。
电梯厅宽敞大方,轿厢电梯内部装潢精致现代。电梯采用瑞士迅达s7000型轿厢电梯,每个塔楼配备了8+1台电梯,即低区梯4台,高区梯4台,消防梯1台。
阳光暖房是特色,通过奇偶数层的变幻,在每层设计出一个挑高空间。整个空间设计为8米通高,约82平方米,采用落地玻璃幕墙,结合梯形平面布局,辅之以绿植点缀,形成一个绿色的空间。
UDC时代大厦办公空间大面积落地玻璃幕墙,窗外美景时刻与室内交流。灵动的空间格局,满足企业自身需要,合理规划。
自大堂而上,分别设置了金融证券配套、兴建餐饮区域、会议中心和休闲健身区域,同时在中庭屋顶设有欧式空中花园,为业主提供一个于工作之中和之外的楼中生活“block”。
UDC时代大厦为业主提供5项智能化系统:办公智能化,在楼内设置专门机房和虚拟网;以著名品牌楼宇智能化系统为核心,优化各系统,统一管理;24小时标准消防控制系统和智能安防监控系统;通讯智能化,综合布线满足新的EPON技术。

德国gmp建筑设计事务所(全称为冯·格康,玛格及合作者建筑设计事务所)由麦哈德·冯·格康,福尔克温·玛格于1965年共同创立。gmp是少数进行全方位设计的建筑事务所之一,其对建筑项目从方案设计到施工建造直至室内装修全面负责。
建筑设计:德国GMP建筑设计事务所 物业服务顾问:第一太平戴维斯