金通国际大厦位于杭州城北----大运河商务区和杭州汽车特色商业街区双商圈;金通国际大厦项目总建筑面积约40000平米,平层写字楼、LOFT写字楼、裙楼商业三大业态为企业提供一站式、高品质商务服务;地址:杭州市拱墅区花园岗街113号
点击查看商情>>

快速连接高架和绕城高速,立体交通网络,城际切换自如;欧尚、联华、奥特莱斯、万达广场、国际会展中心、区政府相邻,助
您轻松掌握都市节奏;
公交路线:47路、69路、91路、98路、403路等可达。
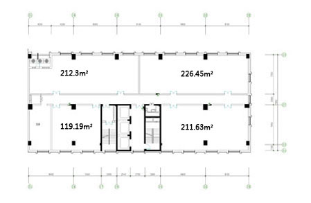
建筑面积160-740㎡灵活分割
金通国际大厦的多功能空间设计,
平面空间可进行自由组合,
满足各类企业不同办公面积的需求。


- 平层写字楼首层大堂
- 平层写字楼室内效果图
电子商务公司大本营
百兆光纤入户/电视电话全面接入/专用货梯和通道高资质物流快递公司入驻/全方位、专业化管家式服务;
创业型企业孵化器
4.98米层高,一层租金,双层使用/精装交付/工商税务一站式服务/助推高校毕业生、事业初创者成就梦想;


- LOFT首层大堂
- 室内精装交付

电梯:大楼提供6台西子OTIS高品质电梯,便捷高效。
科技:光纤到户、智能化办公体系,提升您的办公效率。
物业:提供全方位物业服务,停车保管、电子监控、消防监控等服务,
给您安全高效的商务体验。
配套:银行(招商中)、员工餐厅(招商中)、地下二层停车场。

loft平层图
LOFT写字楼(4.98米层高),建筑面积37-53㎡/间,每层25间

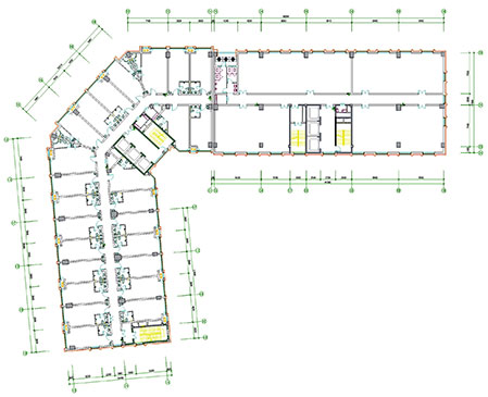
整体平面图
写字楼平面图(建筑面积)
标准写字楼(3.6米层高),161-208㎡/间,整层约732㎡









