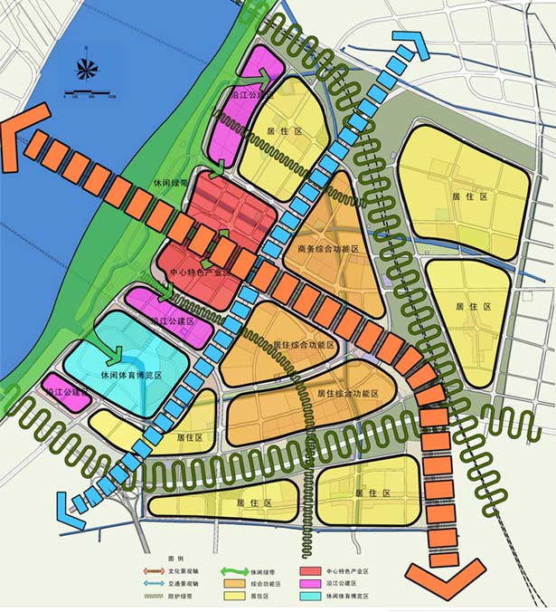
杭州钱江世纪城规划结构图
文章导读:

文章关键字:杭州钱江世纪城
来源:钱江世纪城管委会 作者: 编辑:8037
返回顶部
返回顶部 下一篇:杭州钱江世纪城CBD概况上一篇:杭州钱江世纪城非机动车交通系统规划图
相关阅读:
- ·杭州钱江世纪城破题“三问” 当好萧山(03/05)
- ·杭州钱江世纪城金融产业百舸争流(11/16)
- ·杭州钱江世纪城全面进入“亚运时间” (11/06)
- ·杭州钱江世纪城半年成绩单靓丽出炉(08/16)
- ·对标先进,杭州钱江世纪城能否打造一个(07/19)
- ·千亿项目加速集聚 杭州钱江世纪城大湾(07/19)
- ·杭州钱江世纪城总部经济开启新未来(04/17)
- ·杭州钱江世纪城招商引资量质并举(04/01)
- ·杭州钱江世纪城的宏伟蓝图正在变为现实(03/23)
- ·杭州钱江世纪城打造国际会展之都(03/16)
[声明]:文章仅供学习交流,如涉及版权问题请及时与我们联系kf#5sw.com,#换@。感谢所有提供文章的媒体和作者。
最新文章